免费平面布置图_免费平面布置图软件
*** 次数:1999998 已用完,请联系开发者***

╯^╰〉 56㎡简约小户型公寓,竟装下独立阳台和衣帽间,牛了!今天分享一套实际使用面积为56平米的简约风小户型单身公寓的装修案例,空间虽然小,但是设计师在房屋功能上设计得很齐全,有阳台,有迷你衣帽间,卧室也有独立的隔断,选用橘色来过渡,也希望能够给小窝增加一点活力。 ▲ 平面布置图 ▲入户玄关看上去还是蛮大的,一侧做了嵌入式的换...

75平简约风小户型,看似简单实则暗藏诸多细节今天分享的是一套建筑面积75平米的小户型二居室案例,整体设计以大方、简约为主,加入了舒适的软装。设计师以白色和灰色作为主色调,在细节处点缀橙色,让这个房子多出了一些活力感,更加独特。 平面布置图 入户的玄关走廊空间,把鞋柜和换鞋凳结合在一起,换鞋凳区域还做了穿衣镜...
![]()
90平简约实用LOFT,实现居家办公多功能!▲ 本案是一个层高4.7m的loft,建筑面积90平,项目坐标:南京,设计师说在前面:在开阔的视野下,灵活的空间分区,让居室呈现多样性,探索空间叙事中,空间里的所有元素,都会显现出生活的痕迹,家,从来不需要被定义 ▲ 一楼平面布置图 ▲ 入户即见开放式餐厨区,餐桌与岛台相融,中西厨交错,为...

∪ω∪ 144平精装房改轻法奶油调,横厅三室太惊艳!▲ 项目面积144平,本案为三室两厅的精装房改造项目,业主一家三口居住,希望家的空间是开阔又温暖的,因此更多的设计重点放在空间功能区划分和色彩搭配运用上。奶油系的配色,空间感与实用性的组合,打造出业主心中的理想居所 ▲ 原始平面图 ▲ 平面布置图 空间改造要点: ①客厅横...

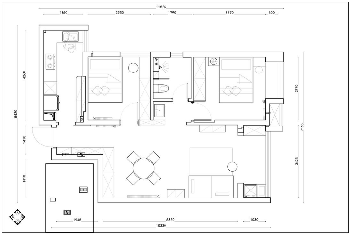
130平现代简约风,温馨横厅三室来袭!▲ 项目面积130平,这座住宅,不仅是一个遮风挡雨的居所,更是承载着家庭梦想与希望的港湾。它置身于无锡惠山重点学区板块的核心地带,仿佛在轻声诉说着,这里将是孩子茁壮成长的摇篮,是家庭幸福生活的起点,是未来无限可能的美好开端 ▲ 平面布置图 ▲ 入户玄关,正对入户门的这面墙...

188平LDK现代极简大三室▲ 项目面积188平,项目坐标:天津,设计师说在前面:重构四口之居的空间,不仅要保留基础的三居结构,而且要更开阔,动线更自由;有条理地设置收纳空间,营造极简化的呼吸式感官体验 ▲ 原始结构图 ▲ 平面布置图 ▲ 入户视角。消除原户型大而琐碎的印象,拆解分割空间的墙体,让功能穿插...

卧室这样加桌子,实用度直接拉满!▲ 设计面积120平,项目坐标:武汉,整体空间中大量运用了木质元素。木质百叶、窗套、套线,在整体空间中穿插,清新雅致,让人感受到一种宁静自然的氛围 ▲ 平面结构图 ▲ 平面布置图 ▲ 入户左手边设计穿衣镜+挂衣钩+洞洞板+换鞋凳一体,美观与实用兼具 ▲ 东方调,宣纸的门,既柔美又有...

83平简约风两居改三居,打造紧凑实用小窝!今天分享的是一套建筑面积83平米的简约风小户型三居室案例,原本是二房的户型,设计师为了满足屋主一家的居住需求,把餐厅改成了卧室,客餐厅结合起来,构造出了这样一个紧凑而又实用的小窝。 平面布置图,户型整体比较扁长,却也给人一种简单的感觉。 这套案例的户型是手枪型的,入...

∩ω∩ 广东小姐姐改造36㎡小宅意外走红,获50W人点赞美炸了!接下来跟@本设家居一起去看看吧~ 平面布置图 这是一套典型的公寓户型,长方形结构,单面采光。 根据小姐姐的生活习惯和需求,以及层高优势,将空间分为两层: 一层布置玄关、敞开式的客餐厨和卫生间,以及把阳台作为独立的洗衣晾晒区。 二层通往卧室需要经过衣帽间和过道,作为过渡...
 ̄□ ̄|| 
82平小户型复式楼,一楼开放式布局,堪比别墅大气!今天小编分享的是一套双层面积加起来为82平米的小户型复式楼案例,设计师以年轻、现代的风格搭配清新、文艺的软装,再加上温馨的木质感,来打造出这样一个让人感觉温暖、舒适的小窝,就算户型不好也无所谓了。 平面布置图 在入户玄关的侧方做上了到顶的嵌入式鞋柜,鞋柜的底部和...

老王加速器部分文章、数据、图片来自互联网,一切版权均归源网站或源作者所有。
如果侵犯了你的权益请来信告知删除。邮箱:xxxxxxx@qq.com